English text see below
Aan de rand van de populaire Burgemeesterswijk gelegen sfeervolle jaren ’30 woning met 4 slaapkamers. Deze fijne woning beschikt over een heerlijke achtertuin op het zonnige zuidwesten (met achterom en berging) en veel authentieke details waaronder glas in lood ramen, een erker, granito vloer en originele wandtegels in de hal. Kortom; een fijne gezinswoning op een mooie plek!
De Hartmanstraat is een rustige en kindvriendelijke straat in een fijne buurt, op steenworp afstand van het historische centrum van Leiden met zijn vele winkels, restaurants, musea en grachten. In de directe omgeving bevinden zich een kinderopvang, basis- en middelbare scholen, diverse sportverenigingen (hockey, tennis en voetbal), het Roomburgerpark én park Cronesteyn. De NS-stations Lammenschans en Leiden Centraal liggen op respectievelijk 5 en 10 minuten fietsafstand en de uitvalswegen A4/N11 zijn tevens zeer gemakkelijk te bereiken.
Bekijk ook de bezichtigingsvideo!
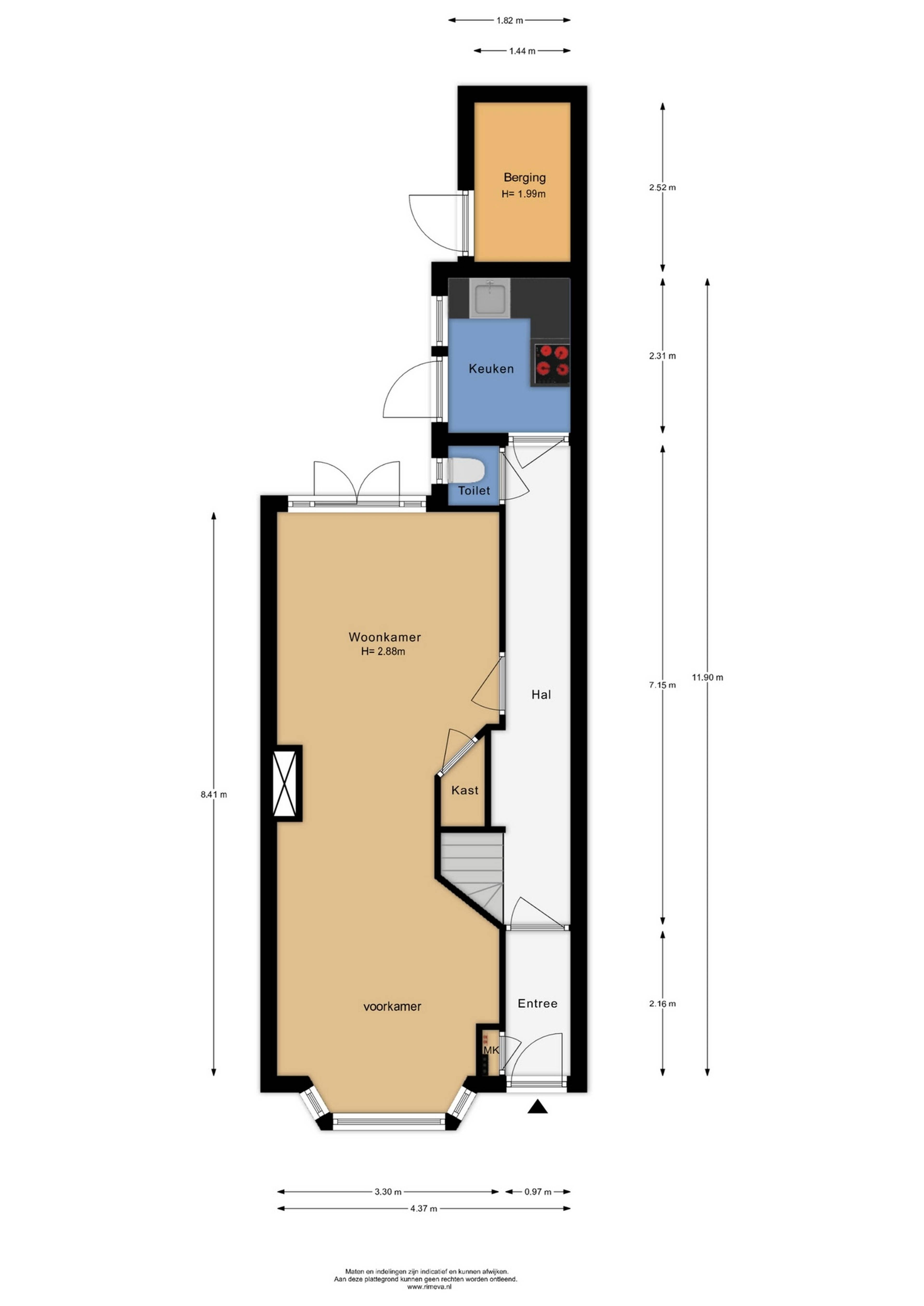
De indeling:
Begane grond:
Authentieke entree. Vestibule met meterkast en originele wandtegels. Aansluitend een hal met trapopgang naar de eerste verdieping en met originele granitovloer en emaille lambrisering. Toegang tot een toilet met tevens een authentieke granito vloer. Aansluitend een (gesloten) eenvoudige keuken met een deur naar de fijne achtertuin.
De gezellige woonkamer is voorzien van een houten vloer en beschikt over een erker aan de voorzijde met glas in lood ramen, een inbouw(trap)kast en openslaande deuren naar de achtertuin (ZW), met achterom en houten berging.
1e verdieping:
Overloop met trapopgang naar de tweede verdieping. Een ruime slaapkamer aan de voorzijde met wastafelmeubel en deur naar een trapkast. Aansluitend een badkamer met douche. Aan de achterzijde nog een ruime slaapkamer met toegang tot een fijn dakterras (ZW).
2e verdieping:
Overloop met opstelling wasmachine en CV ketel en toegang tot een ruime slaapkamer aan de achterzijde met dakkapel, inbouw(schuif)kast en veel bergruimte achter de knieschotten. Vanuit deze slaapkamer is de slaapkamer aan de voorzijde te bereiken, voorzien van een dakraam, inbouwkast en tevens veel bergruimte achter de knieschotten.
Bijzonderheden:
- Bouwjaar 1941
- Beschermd stadsgezicht
- Gebruiksoppervlakte wonen 106m2
- Gebouw gebonden buitenruimte 7m2 (balkon)
- Externe bergruimte 4m2
- Inhoud 375m3
- Perceeloppervlakte 84m2
- Energielabel C
- CV ketel merk Nefit, bouwjaar 2013
- Overal dubbel glas (behalve glas in lood)
- Bitumen dakbedekking dakkapel achter vervangen 2025
- Dakgoot vernieuwd in 2025 (achterzijde)
- Schuur dakbedekking vernieuwd 2023
- Meterkast met 4 groepen (smelt)
- Bouwtechnisch rapport aanwezig
- Betaald parkeren (vergunning ca. € 61,- per jaar, geen wachtlijst)
- Oplevering in overleg
Bij woningen ouder dan 30 jaar hanteren wij standaard een ouderdoms- en asbestclausule.
------------------------------------------------------------------------------------------------------------------------------
Charming 1930s home with 4 bedrooms, located on the edge of the popular Burgemeesterswijk. This pleasant property features a lovely southwest-facing backyard (with rear access and a storage shed) and many authentic details, including stained glass windows, a bay window, a granito floor, and original wall tiles in the hallway. In short: a wonderful family home in a great location!
Hartmanstraat is a quiet and child-friendly street in a pleasant neighborhood, just a stone’s throw from the historic center of Leiden, with its many shops, restaurants, museums, and canals. In the immediate vicinity, you will find childcare facilities, primary and secondary schools, various sports clubs (hockey, tennis, and football), the Roomburgerpark, and Cronesteyn Park. The NS train stations Lammenschans and Leiden Central are approximately 5 and 10 minutes away by bicycle, respectively, and the A4/N11 highways are also easily accessible.
Be sure to watch the viewing video!
Layout:
Ground floor:
Authentic entrance. Vestibule with meter cupboard and original wall tiles. Followed by a hallway with a staircase to the first floor, featuring an original granito floor and enamel wall paneling. Access to a toilet, also with an authentic granito floor. Adjacent is a simple, enclosed kitchen with a door leading to the pleasant backyard.
The cozy living room has a wooden floor and features a bay window at the front with stained glass, a built-in (under-stairs) cupboard, and French doors opening onto the southwest-facing backyard with rear access and a wooden shed.
First floor:
Landing with staircase to the second floor. A spacious bedroom at the front with a washbasin unit and a door to a storage cupboard. Adjacent is a bathroom with a shower. At the rear, another spacious bedroom with access to a pleasant southwest-facing roof terrace.
Second floor:
Landing with washing machine setup and central heating boiler, and access to a spacious rear bedroom with a dormer window, built-in (sliding) wardrobe, and ample storage space behind the knee walls. From this bedroom, you can access the front bedroom, which features a skylight, built-in wardrobe, and additional storage behind the knee walls.
Special features:
- Year of construction: 1941
- Protected cityscape
- Living area: 106 m²
- Building-related outdoor space: 7 m² (balcony)
- External storage: 4 m²
- Volume: 375 m³
- Plot size: 84 m²
- Energy label: C
- Central heating boiler (Nefit), built in 2013
- Double glazing throughout (except stained glass)
- Bitumen roofing on rear dormer replaced in 2025
- Gutter renewed in 2025 (rear)
- Shed roofing replaced in 2023
- Meter cupboard with 4 groups (fuses)
- Building inspection report available
- Paid parking (permit approx. €61 per year, no waiting list)
- Transfer in consultation
For properties older than 30 years, we standardly include an age and asbestos clause.