woonhuis grachtenpand

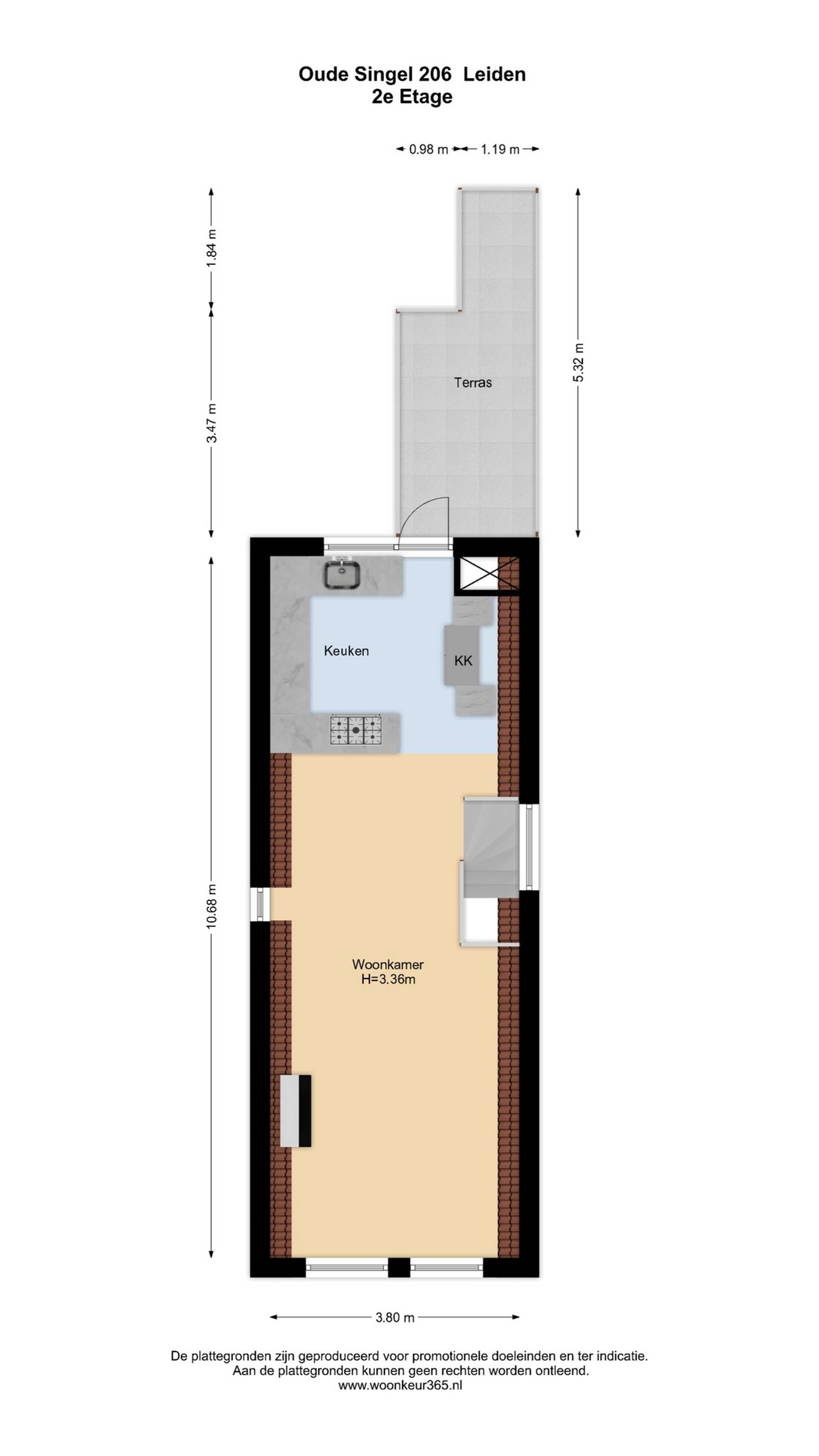
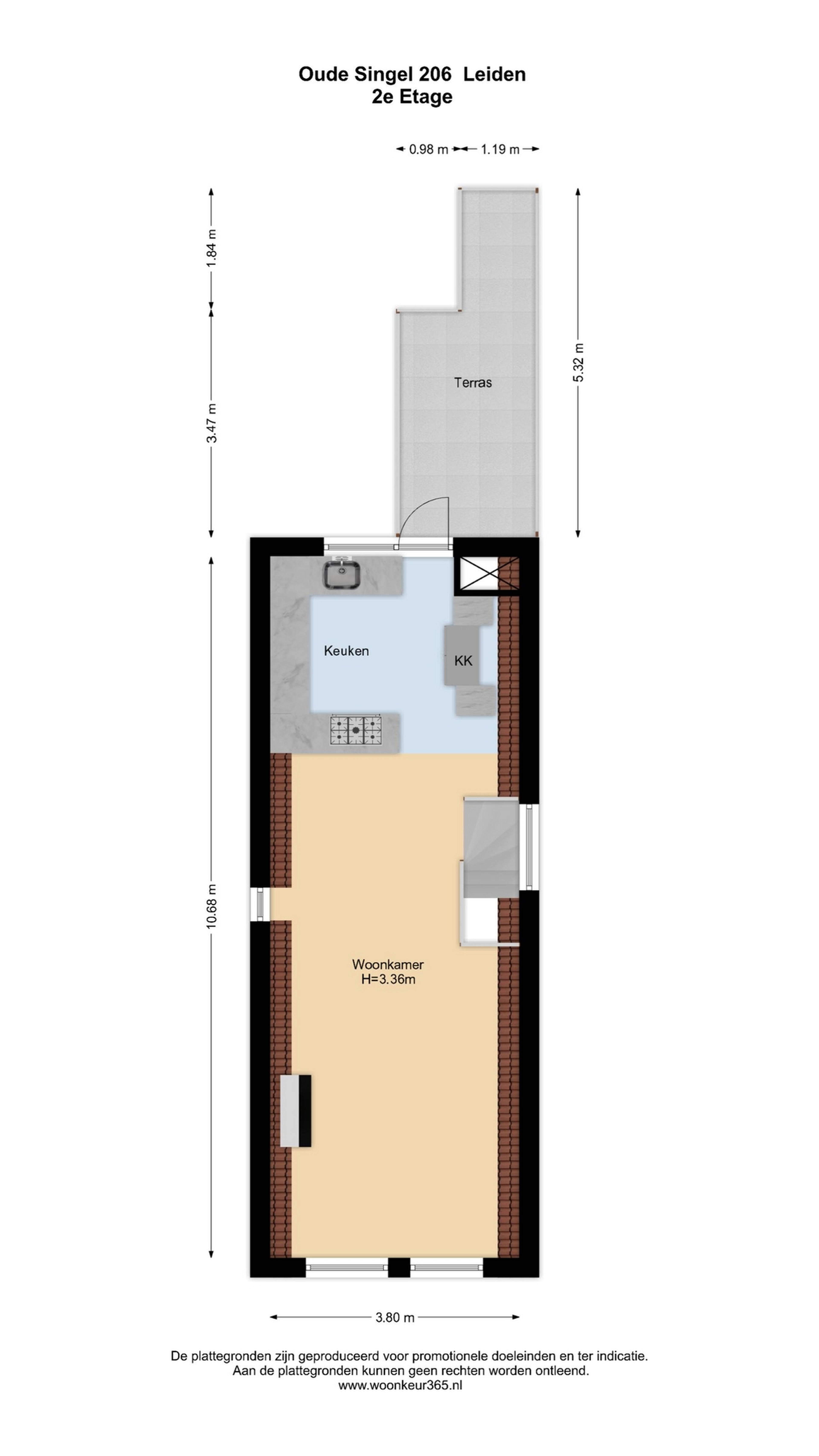
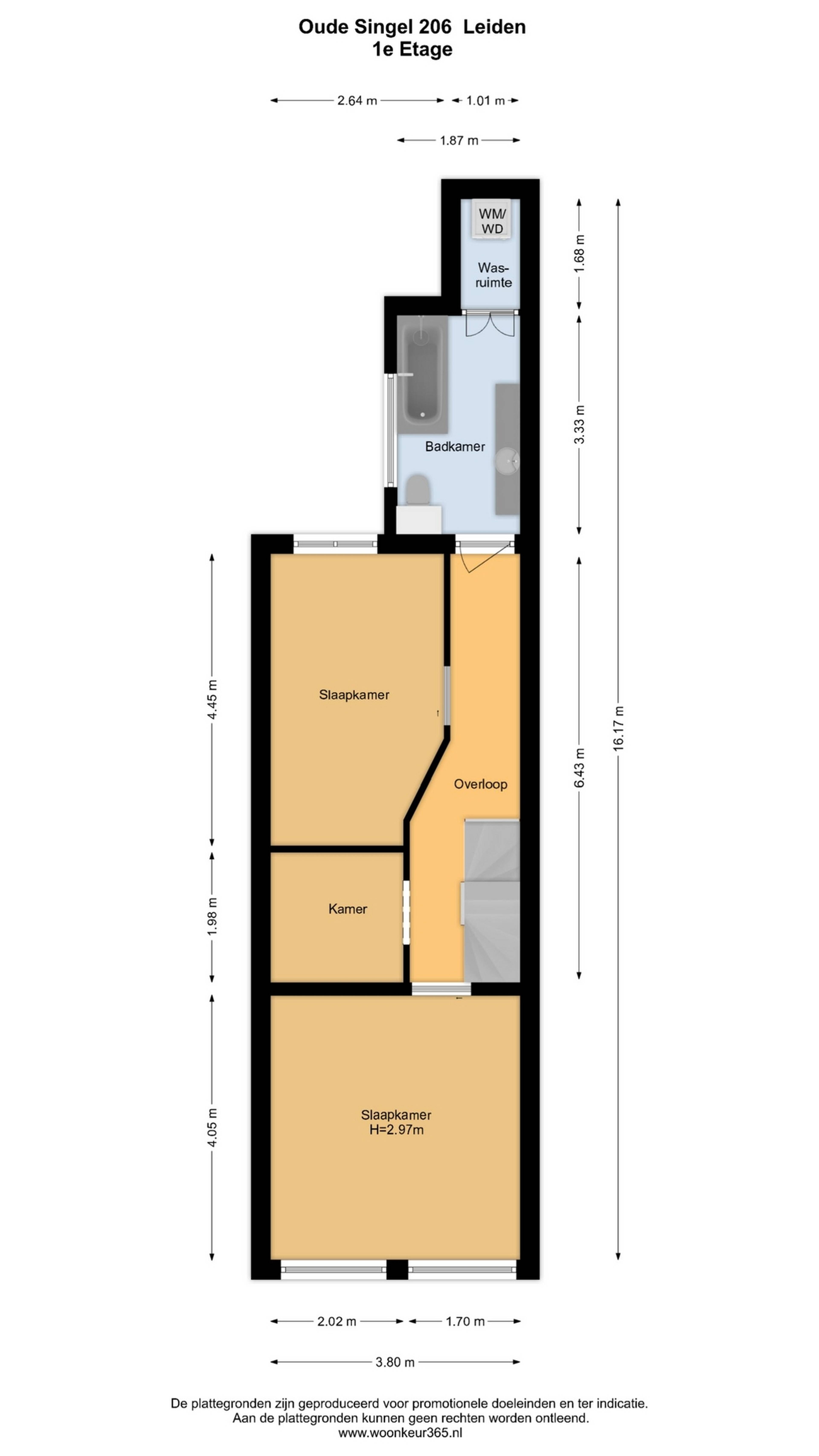
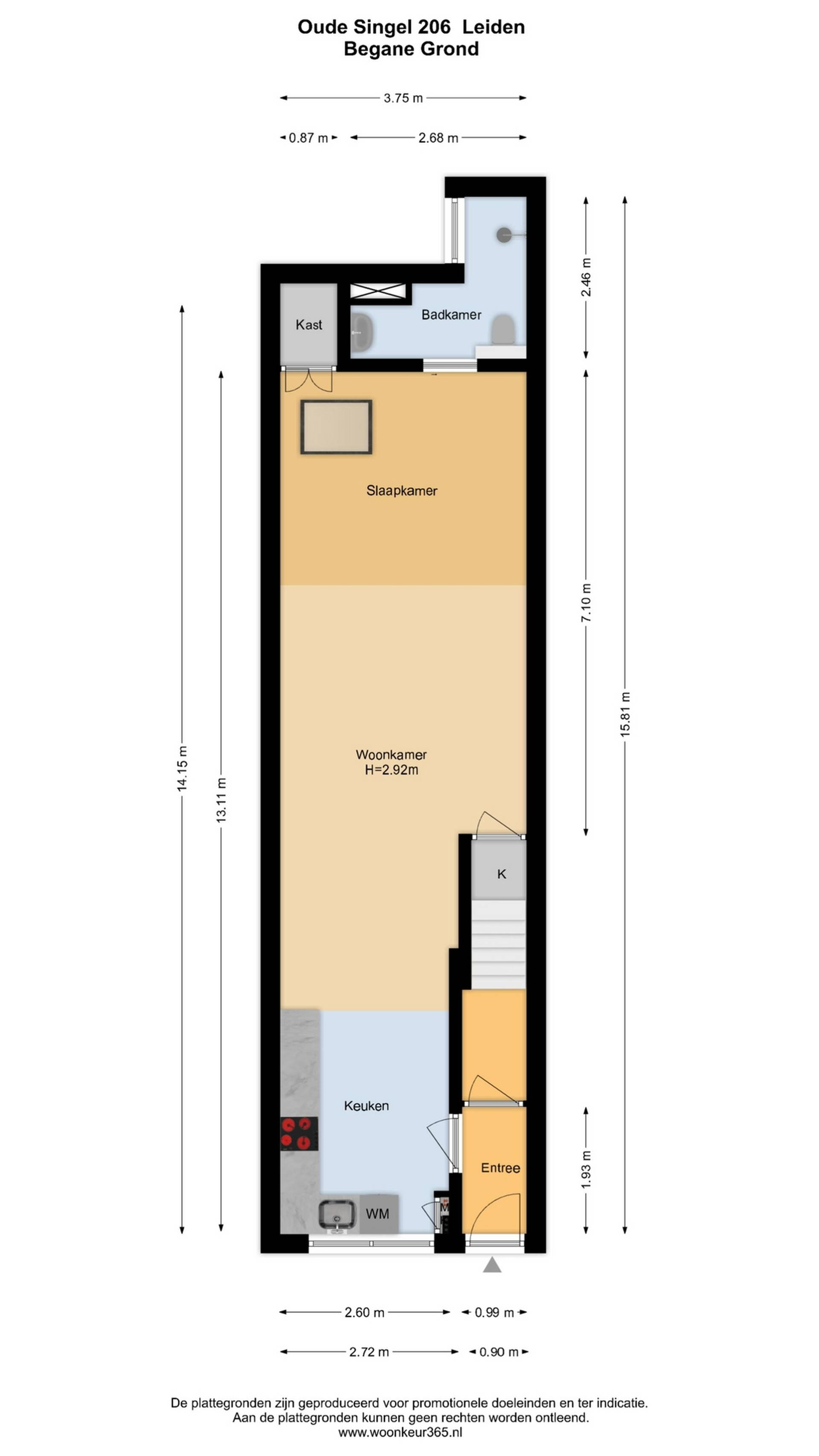
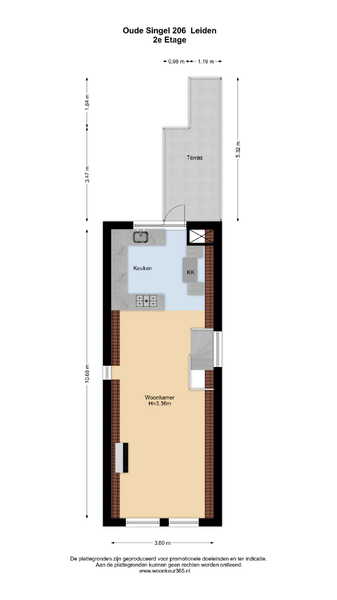
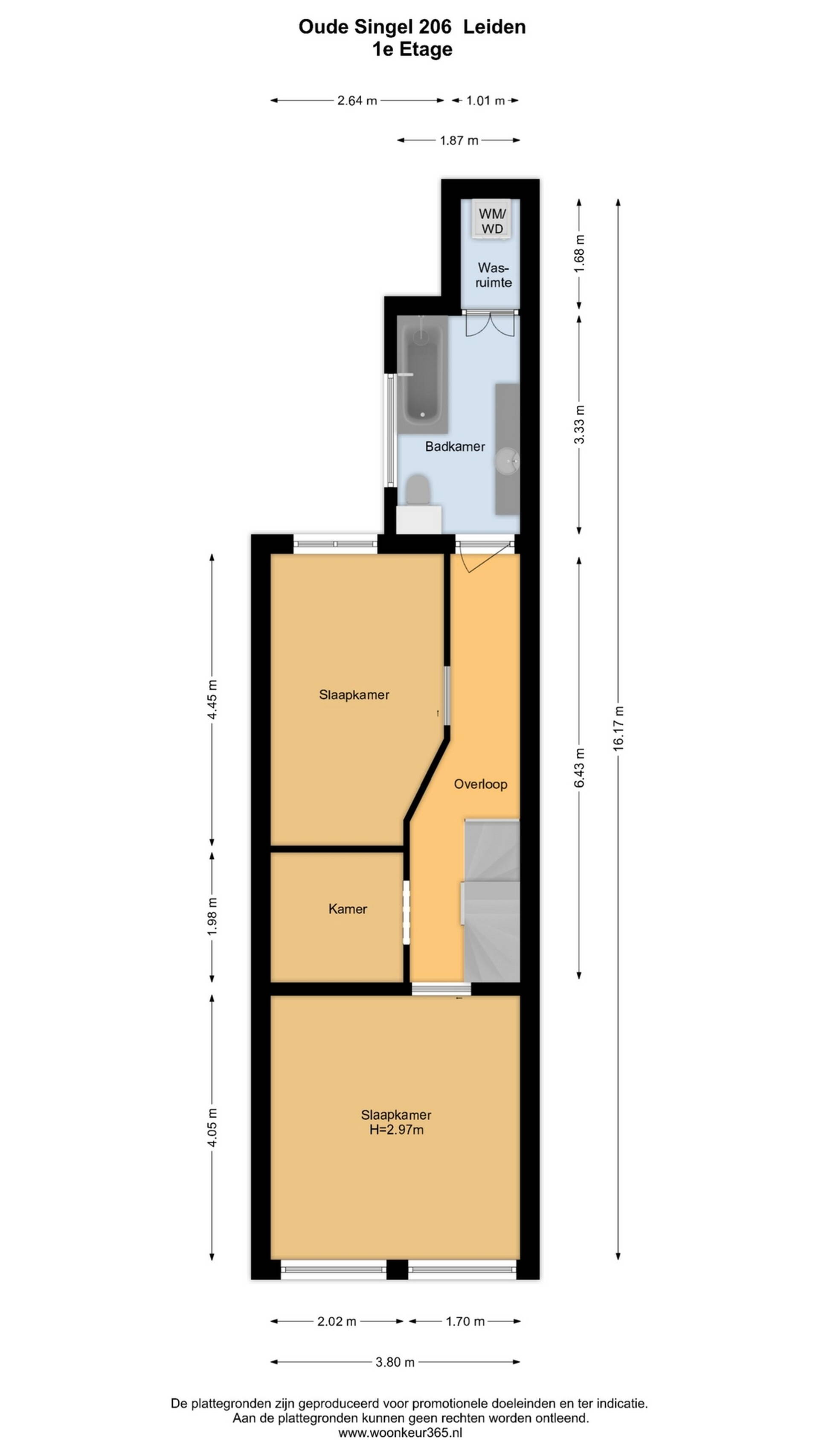
Oude Singel 2062312 RJ  Leiden

138 m2 69 m2 5 kamers 3 slaapkamers

780.000 k.k.

Oude Singel 206 Leiden
Naar boven