Wonen in hartje Leiden – karakter, rust én mogelijkheden!
In een charmante en rustige steeg midden in de historische binnenstad van Leiden ligt deze verrassend ingedeelde benedenwoning. Een ideale kans voor starters, expats of investeerders die op zoek zijn naar een betaalbare woning met potentie op een toplocatie.
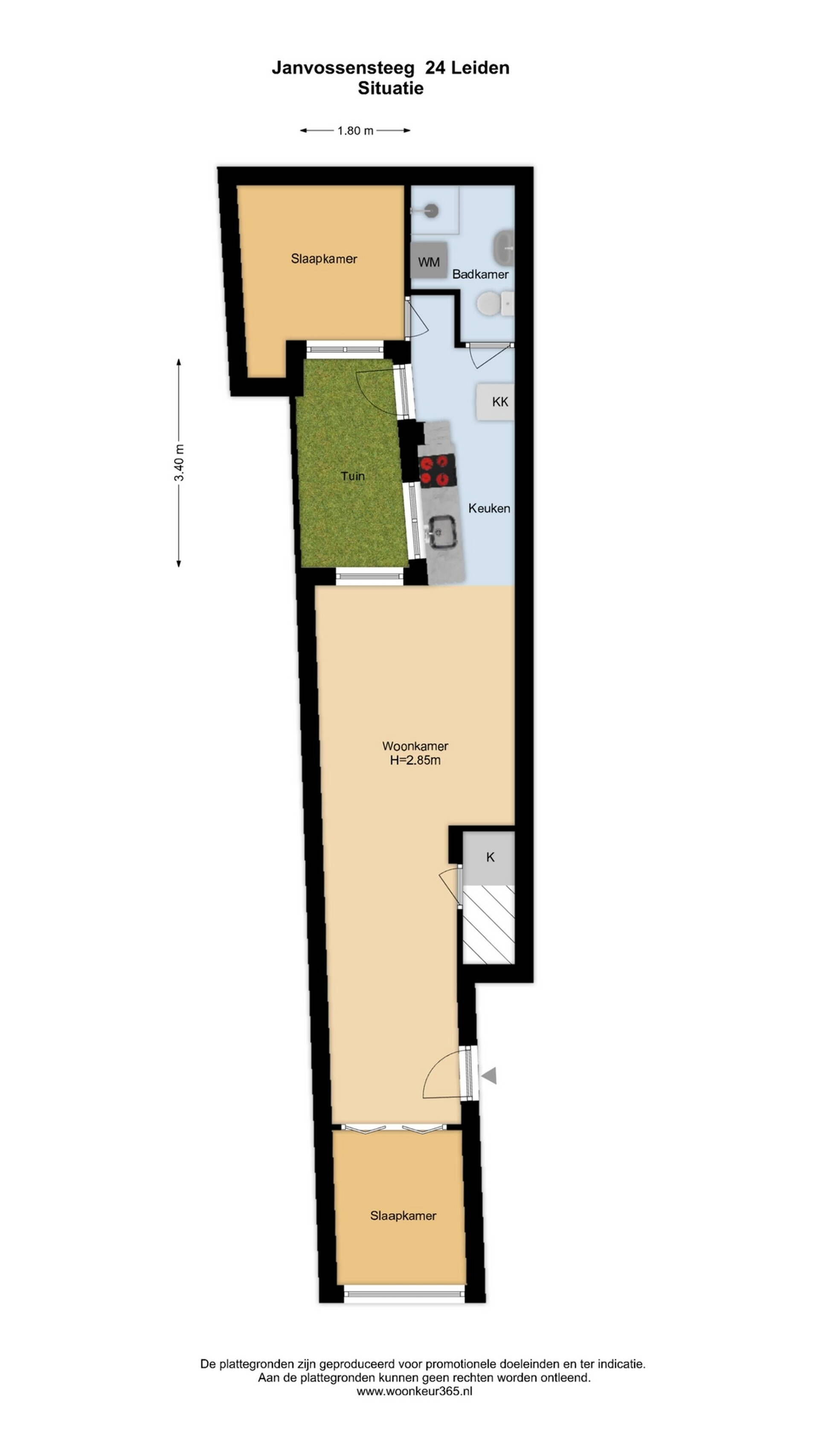
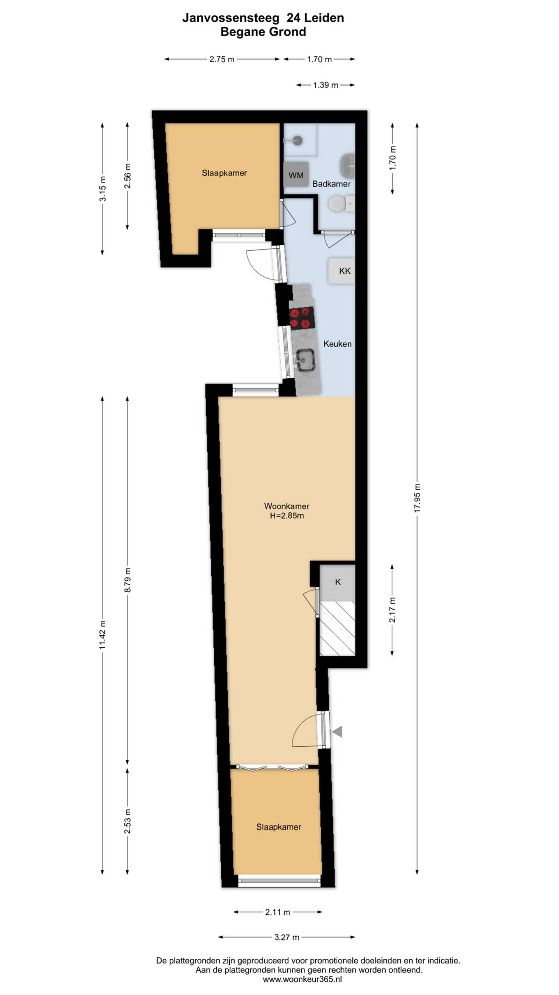
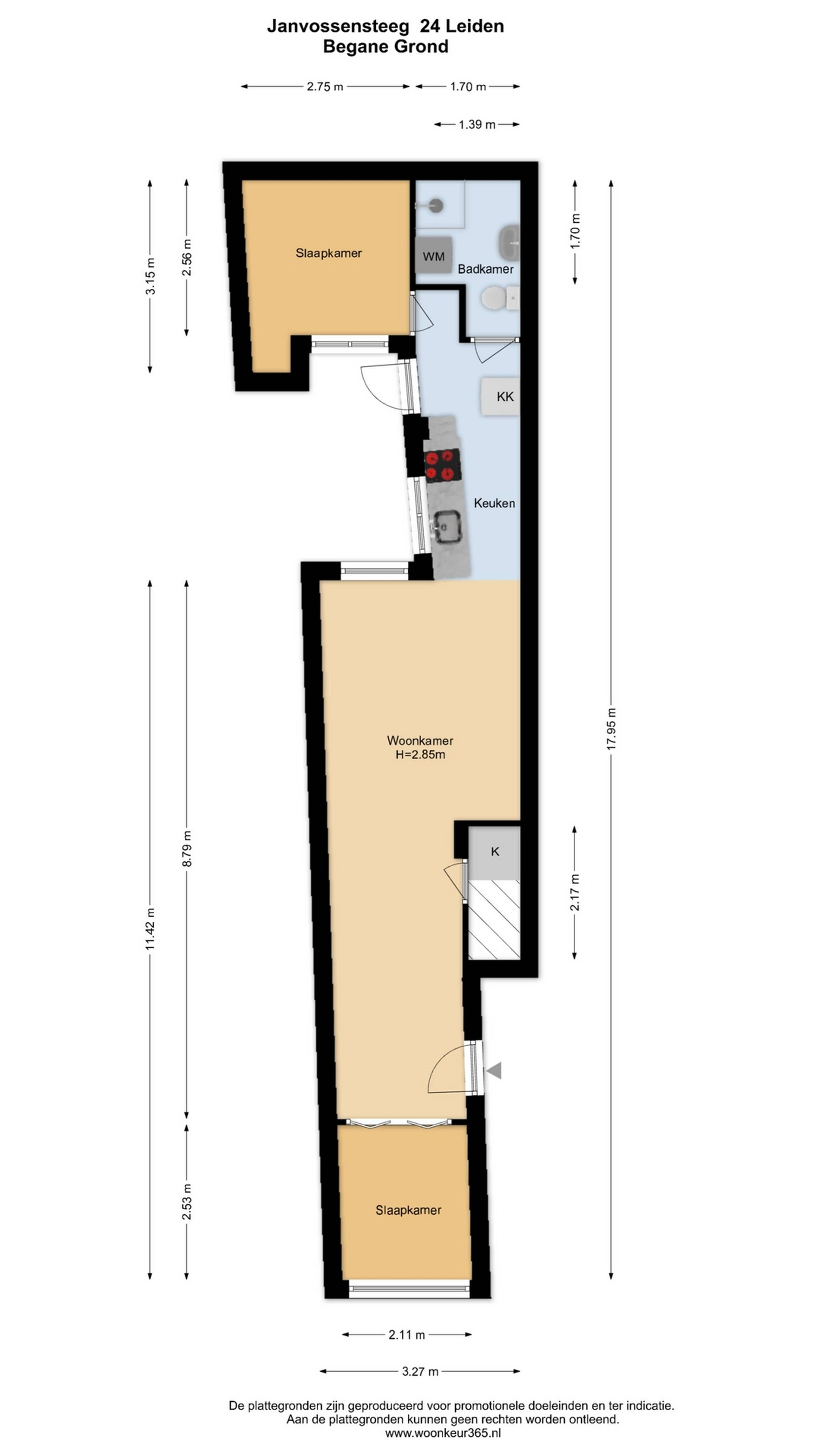
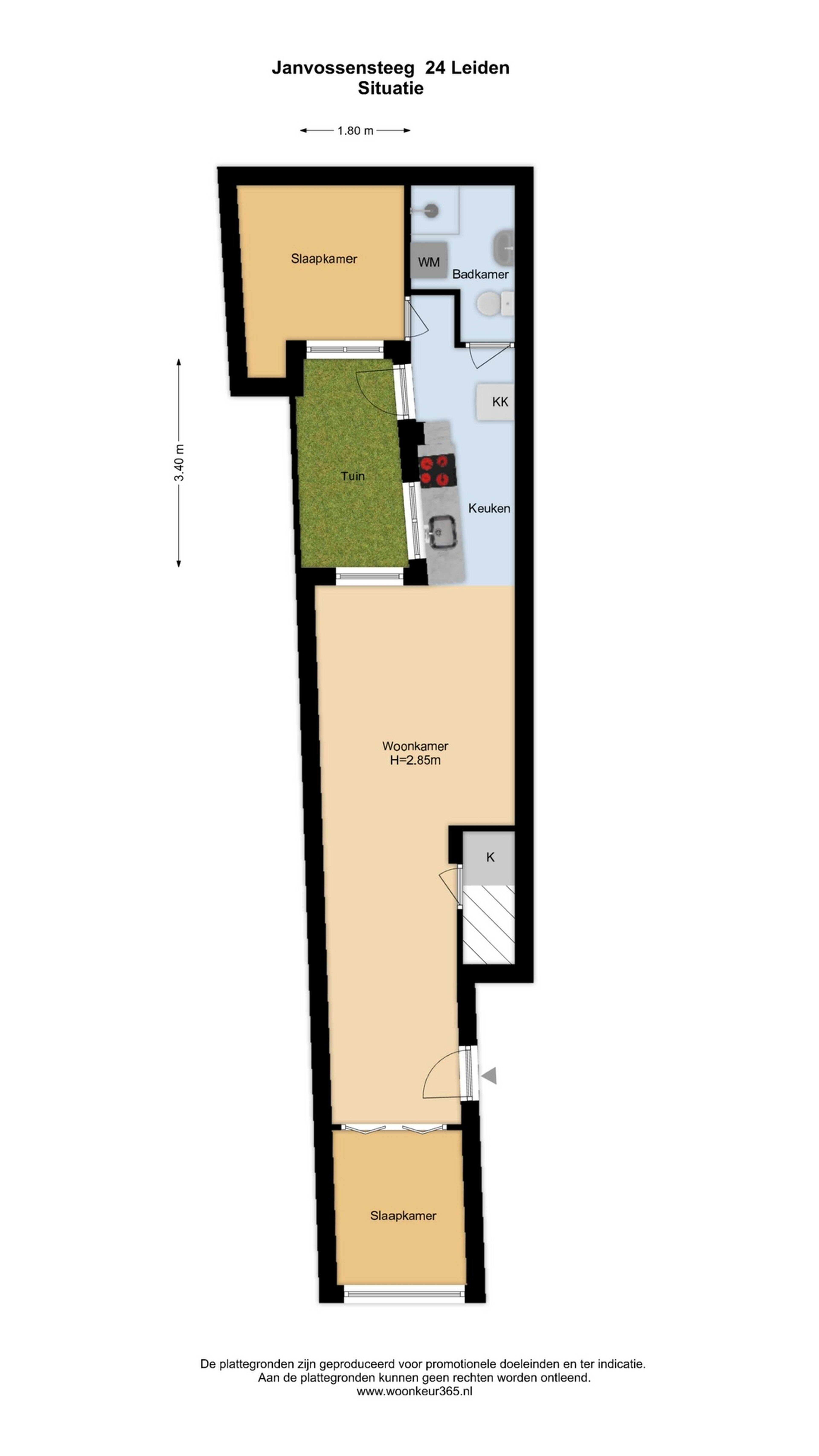
De woning beschikt over een praktische indeling met een doorzonwoonkamer, aparte keuken, badkamer, twee slaapkamers en een beschutte patio/tuin.
Begane grond
De langgerekte woonkamer aan de voorzijde biedt ruimte voor zowel een zit- als eethoek en profiteert van prettige lichtinval.
Aan de achterzijde bevindt zich de keuken, voorzien van een gaskookplaat, afzuigkap en spoelbak. Vanuit hier heb je toegang tot de patio/tuin – een fijne plek om even buiten te zitten midden in de stad.
De badkamer beschikt over een douche, toilet en wastafel.
De woning heeft twee slaapkamers: één aan de achterzijde en één aan de voorzijde, ideaal als slaap-/werkkamer of voor verhuurdoeleinden.
Locatie
Gelegen in de gezellige binnenstad van Leiden, op loopafstand van:
•winkels, horeca en supermarkten
•openbaar vervoer (station Leiden Centraal)
•universiteit en musea
Een rustige straat met karakter, terwijl alle levendigheid van de stad om de hoek ligt.
Kenmerken
•VvE-bijdrage: € 84,95 per maand
•Voorschot gas, water en elektra € 151,16
•Eigen grond
•Gelegen in beschermd stadsgezicht
Living in the heart of Leiden - charm, tranquility & potential!
Located in a charming and quiet alley in the historic city centre of Leiden, this surprisingly well-laid-out ground floor apartment, offers a great opportunity for starters, expats or investors looking for an affordable property with potential in a prime location.
The property features a practical layout including a bright living room, separate kitchen, bathroom, two bedrooms and a sheltered patio/garden.
Ground floor
The elongated living room at the front offers space for both a sitting and dining area and benefits from pleasant natural light.
At the rear, you will find the kitchen, equipped with a gas stove, extractor hood and sink. From here you have access to the patio/garden – a lovely spot to enjoy some outdoor space in the middle of the city.
The bathroom includes a shower, toilet and sink.
The property offers two bedrooms: one at the rear and one at the front, ideal as a bedroom, home office or for rental purposes.
Location
Situated in the vibrant city centre of Leiden, within walking distance of:
•shops, restaurants and supermarkets
•public transport (Leiden Central Station)
•university and museums
A quiet street full of character, while all the city’s amenities are just around the corner.
Key features
•HOA contribution: € 84.95 per month
•Advance payment utilities (gas, water, electricity): € 151.16
•Freehold property
•Located in a protected cityscape