appartement/flat appartement

Geregracht 9A2311 PA  Leiden

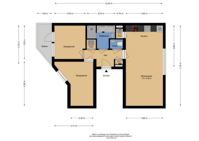
65 m2 3 kamers 2 slaapkamers

435.000 k.k.

A
Geregracht 9A Leiden
Naar boven