Sfeervolle jaren ’30 benedenwoning met groene tuin
Op een geliefde locatie aan de Hoge Rijndijk ligt deze charmante en lichte jaren ’30 benedenwoning met prachtige authentieke details en een heerlijk groene achtertuin. De woning beschikt over onder andere kamer-en-suite, glas-in-loodramen, een marmeren schouw, hoge plafonds en een sfeervolle erker aan de voorzijde. Dankzij de ramen tot het plafond geniet je in de hele woning van een prettige lichtinval. De speelse indeling, met enkele verspringende wanden, geeft het huis extra karakter.
De woning is grotendeels voorzien van dubbel glas en op de begane grond ligt een fraaie eikenhouten vloer. De gevel is in 2022 opnieuw gevoegd, wat bijdraagt aan een verzorgde en solide uitstraling. De actieve VvE verzorgt onder andere het onderhoud en schilderwerk van ramen en kozijnen; de maandelijkse bijdrage bedraagt €300,-.
Indeling:
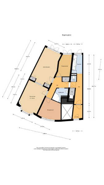
Via de gezamenlijke entree kom je binnen in de hal die toegang biedt tot de verschillende vertrekken. Aan de achterzijde bevindt zich de keuken, voorzien van een oven, gasfornuis, afzuigkap en een losse vaatwasser. In de hal vind je tevens een separaat toilet en een afgesloten kast met wasmachineaansluiting.
Vanuit de centrale hal bereik je de badkamer, en de twee slaapkamers: één aan de voorzijde en één aan de achterzijde van de woning. De sfeervolle voor- en achterkamer worden gescheiden door de karakteristieke kamer-en-suite-deuren met originele opbergkasten. Aan de achterzijde geven openslaande deuren toegang tot de groene en zonnige tuin (met kleine berging/schuur), waar je heerlijk kunt ontspannen.
Bijzonderheden:
•Authentieke jaren ’30 details
•Kamer-en-suite met vaste kasten
•Glas-in-loodramen en mooie erker
•Eikenhouten vloer op de begane grond
•Grotendeels dubbel glas
•Gevel opnieuw gevoegd in 2022
•Groene achtertuin met openslaande deuren
•Speelse indeling met veel lichtinval
•Betaald parkeren (vergunning kost 61 euro per jaar)
•Kleine houten berging in de tuin aanwezig
•Oplevering in overleg
Een sfeervolle en comfortabele woning op een steenworp afstand van het centrum van Leiden. Maak snel een afspraak voor een bezichtiging!
Bij woningen ouder dan 30 jaar hanteren wij standaard een asbest- en ouderdomsclausule.