Ruime hoekwoning met grote tuin.
In een rustige en kindvriendelijke woonwijk in Leiderdorp ligt deze ruime en goed onderhouden hoekwoning met een lichte woonkamer, moderne open keuken, vier slaapkamers en een royale tuin op het zuidwesten. Dankzij de hoekligging profiteert de woning van extra lichtinval en een ruim perceel.
De woning bevindt zich op korte afstand van winkels, scholen, sportvoorzieningen en recreatiemogelijkheden. Daarnaast zijn de uitvalswegen richting Leiden en de A4 snel bereikbaar.
Bijzonderheden
•Bouwjaar 1985
•Woonoppervlakte ca. 120 m²
•Energielabel C
•5 kamers (4 slaapkamers)
•Lichte woonkamer met visgraatvloer
•Moderne open keuken
•Royale tuin op het zuidwesten met veranda en berging
•Badkamer met ligbad
•Ruime zolderverdieping met mogelijkheden
•Grote berging aan de voorzijde
•Voldoende parkeergelegenheid in de omgeving
•CV-ketel uit 2021
Ligging:
De woning ligt in een rustige en kindvriendelijke woonwijk met veel gezinnen. Op loopafstand bevinden zich het centrum van Leiderdorp, diverse winkels en supermarkten. Ook scholen, sportvoorzieningen en recreatiegebieden liggen in de directe omgeving.
De bereikbaarheid is uitstekend: uitvalswegen richting Leiden en de A4 zijn snel te bereiken en ook het openbaar vervoer en het treinstation van Leiden zijn eenvoudig per fiets bereikbaar. Leiderdorp is een populaire woonplaats dankzij het groene karakter, de goede voorzieningen en de gunstige ligging nabij Leiden.
Indeling:
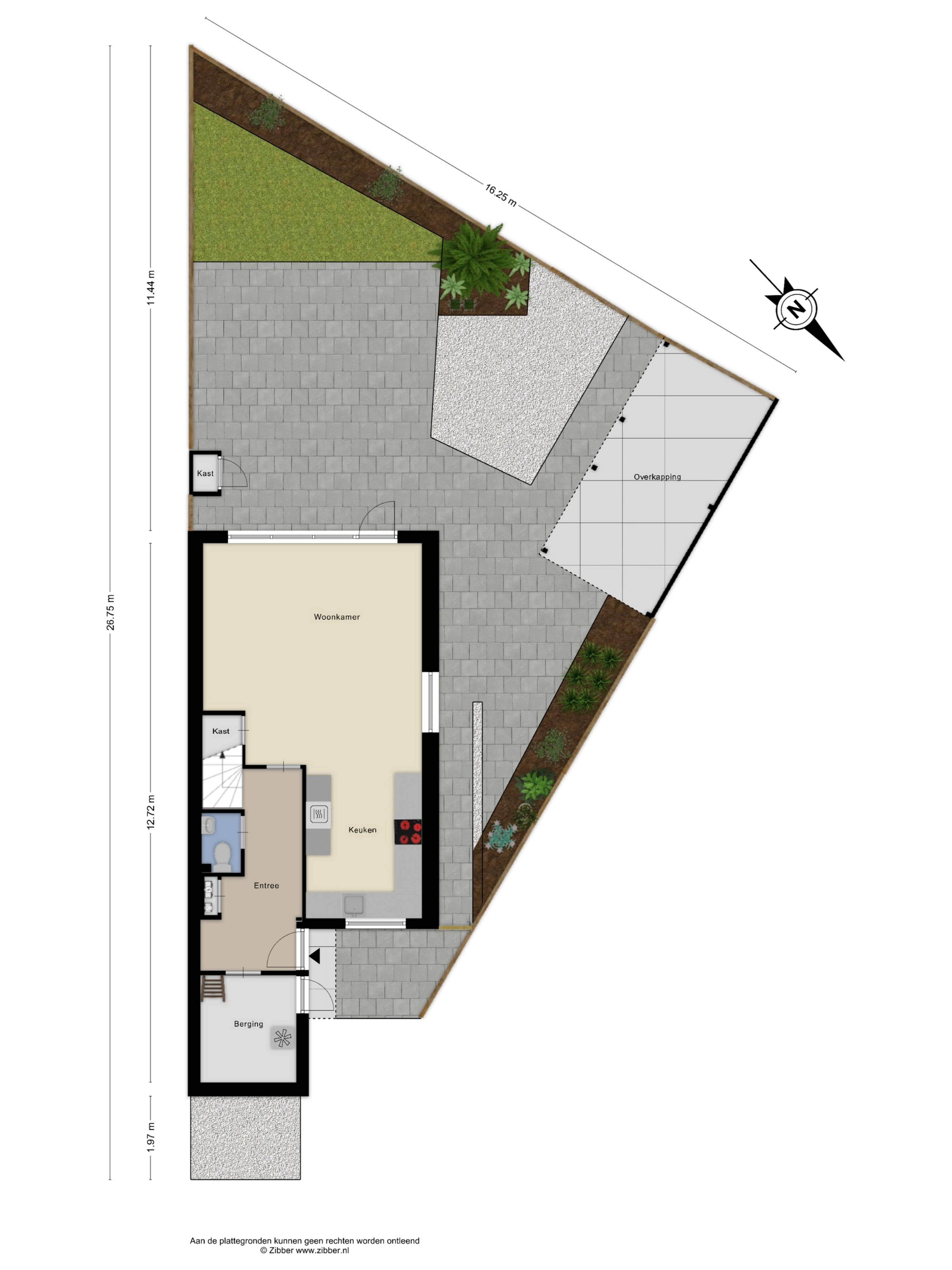
Begane grond
Bij aankomst zie je dat er voldoende parkeergelegenheid is in de omgeving. Aan de voorzijde van de woning bevindt zich een ruime berging die zowel van binnen als van buiten bereikbaar is.
Via de entree kom je in de hal met meterkast, toiletruimte en de trap naar de eerste verdieping. De lichte en ruime woonkamer biedt volop ruimte voor een comfortabele zithoek en een grote eettafel. Door de hoekligging valt er extra daglicht naar binnen, wat zorgt voor een prettige en open sfeer.
De moderne open keuken is voorzien van diverse inbouwapparatuur en beschikt over veel kastruimte, een grote koel-/vriescombinatie, inductiekookplaat en vaatwasser. Op de begane grond ligt een fraaie visgraatvloer die bijdraagt aan de stijlvolle uitstraling van de woonruimte.
Via de woonkamer heb je direct toegang tot de royale achtertuin. De tuin biedt volop mogelijkheden voor meerdere zitplekken, een speelplek voor kinderen of het realiseren van een uitbouw. Dankzij de veranda kun je ook bij minder mooi weer comfortabel buiten zitten.
Eerste verdieping
Op de eerste verdieping bevinden zich drie slaapkamers en de badkamer. De master bedroom ligt aan de achterzijde en is een ruime en lichte kamer met voldoende plek voor een groot bed en kledingkasten.
Aan de voorzijde bevindt zich een slaapkamer die momenteel wordt gebruikt als werkplek, maar ook uitstekend geschikt is als extra slaapkamer. De derde, iets kleinere slaapkamer ligt eveneens aan de achterzijde en is ideaal als kinder- of hobbykamer.
De badkamer is netjes afgewerkt en beschikt over een ligbad, wastafel en voldoende ruimte.
Tweede verdieping
De tweede verdieping biedt volop mogelijkheden. Hier bevindt zich een ruime zolderverdieping die gebruikt kan worden als vierde slaapkamer, werkruimte of hobbykamer. Tevens bevinden zich hier de aansluitingen voor de wasmachine, droger en de cv-ketel.