Sfeervol en instapklaar 3-kamer appartement met zonnige buitenruimte in Leiden
Op zoek naar een modern en comfortabel appartement op een rustige, maar centrale locatie? Dan is Rooseveltstraat 2-D precies wat je zoekt! Dit charmante 3-kamer appartement van ca. 69 m² woonoppervlak is instapklaar en beschikt over een slimme indeling, een lichte woonkamer met open keuken, een eigen buitenruimte én een gunstig energielabel A.
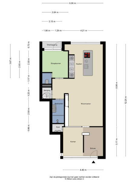
Indeling
Via de entree kom je binnen in een ruime hal die toegang geeft tot een werkkamer (welke omgebouwd kan worden tot een tweede slaapkamer) en woonkamer. De lichte en royale woonkamer vormt het hart van de woning en biedt volop ruimte voor zowel een zit- als eetgedeelte. De moderne open keuken is uitgerust met een kookeiland en voorzien van alle nodige inbouwapparatuur, ideaal voor kookliefhebbers.
De slaapkamer is ruim en rustig gelegen aan de achterzijde van de woning, direct naast de badkamer. De badkamer is praktisch ingedeeld en beschikt over een douche, wastafel en toilet. Verder is er een handige berging en een extra kastaanwezig voor extra opbergruimte.
Aan de voorzijde bevindt zich een gezellige entree met terras, waar je heerlijk kunt genieten van de ochtendzon.
Belangrijkste kenmerken
•Woonoppervlak: 69,3 m²
•Gebruiksoppervlakte buitenruimte (overkapping): 1,6 m²
•Bruto inhoud: 228,94 m³
•Instapklaar en goed onderhouden
•Energielabel A
•Twee entrees: Rooseveltstraat en Fitterstraat (waarvan de Fitterstraat nu de hoofdentree is)
•Moderne open keuken met kookeiland
Locatie
De woning ligt in de Rooseveltstraat, een rustige en groene woonomgeving in Leiden. Winkels, openbaar vervoer, sportfaciliteiten en uitvalswegen bevinden zich in de directe nabijheid. Binnen enkele minuten fiets je naar het historische centrum van Leiden, met zijn gezellige terrassen, restaurants en grachten.